TWO TREES
 
Im Rahmen des Bauprojekts Two Trees wird eine Wohnanlage in Strasshof im Norden von Wien errichtet. Ein Schwerpunkt ist die Integration unterschiedlicher Formen von Begrünung als identitätsstiftendes Element in der suburbanen Umgebung.  
 
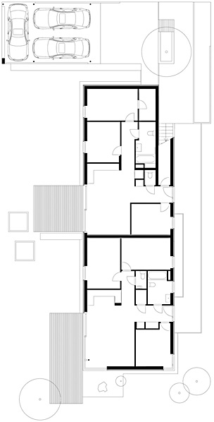
Zwei barrierefreie Wohnungen im Erdgeschoß und eine größere ebenfalls barrierefreie Wohnung im Obergeschoß bilden einen linearen und teilweise aufgelösten Baukörper mit einer Gesamtwohnfläche von ca. 300m2. Ein Carport ist diesem straßenseitig vorgelagert.
 
Um die Nutzung der unbebauten Grünfläche des Grundstücks für mindestens zwei der drei Wohnungen zu gewährleisten, wurde eine lineare, streifenförmige Bebauung mit Erschließung im Osten gewählt. Durch diese Ausrichtung können die Wohnungen im Erdgeschoß für die großzügige Nutzung der Gärten nach Süden und Westen hin geöffnet werden. Mit einer Terrasse und einem balkonartigen Patio werden in der Wohnung im Obergeschoß zusätzliche (unüberdachte) Freiflächen geschaffen.
 
Grüne Akupunktur:
Natur als identitätsstiftendes Element, als räumlicher und sozialer Filter
Die Aufforstung des Gebietes um Strasshof mit Zedern, die zu Zeiten Maria Theresias veranlasst wurde, um das Gebiet vor der Versandung zu bewahren, ist gedanklicher Impulsgeber für punktuelle Begrünungsstrategien zur „Erdung“ des Bauprojekts in seiner suburbanen Umgebung. Durch Integration unterschiedlicher Formen von Begrünung werden Zonierungen und (soziale) Übergangsräume sowie Räume zur Interaktion mit Natur geschaffen.
 
Ein Baum im straßenseitigen Eingangsbereich mit Sitzgelegenheit bildet den Erschließungs- und Aufenthaltsbereich mit halböffentlichem Charakter.
 
Zwei Hochbeete als Angebot für (sub-)urban Gardening und Begrünungen mit Nutzpflanzen an der Grenze zwischen den beiden Wohnungen im Erdgeschoss stellen eine Trennung der beiden Gartenbereiche her und sind zugleich Angebot für mögliche nachbarschaftliche Begegnung.  
 
Die Einbindung von Holz als nachhaltiges Material ermöglicht die Gliederung des Gebäudes und die Unterscheidung der 3 individuellen Wohnungen von außen. Lamellenelemente aus Holz stellen den Sichtschutz im Übergang vom Carport zum Garten her.
 
Ein Steingarten direkt vor dem Panoramafenster bildet die Rahmung des südlichen Ausblicks zum Garten im Erdgeschoss. Ein darüberliegender, auskragender Balkon trägt einen Baum, der als Sichtschutz und Schattenspender den gartenseitigen Abschluss des Gebäudes markiert.
 
Projekt
2-geschoßiges Wohngebäude mit 3 barrierefreien Wohnungen
Adresse: Strasshof an der Nordbahn
Kooperation
Projektpartner: Arch. DI Thomas Sturm (Schlegel&Sturm Architekten)
Mitarbeit / Technisches Consutling: Ing. Karl Wagner
Konsulenten
Statik: GG Ingenieure ZT Gmbh, DI (FH) Gerhard Gschwandtl, DI (FH) Alexander Resch
Energieausweis: Ingenieurbüro Kram GmbH
3D Visualisierungen: Burak Genc
Status
Baubeginn: 2018

 


Grundriss Erdgeschoß